Registration number 3578
Status Archived
paula.palmer

Previous names

  • 1957 - 1986 Frank Spiller Locke
  • 1986 - 1992 Louise
  • 1992 - 2002 Resolution
  • 2002 Frank Spiller Locke

Details

Function Service Vessel
Subfunction Rescue
Location Unknown
Vessel type Lifeboat - Barnett Class
Archive reason More information required
Current use Unknown
Available to hire No
Available for excursions No
Info required Yes

Construction

Builder Groves & Gutteridge Ltd, Cowes
Built in 1957
Hull material Wood
Number of decks 1
Propulsion Motor
Number of engines 2
Primary engine type Inboard diesel
Boiler type None
Boilermaker None

Dimensions

Breadth: Beam
14.00 feet (4.27m)
Depth
4.75 feet (1.45m)
Air Draft
16.00 feet (4.88m)
Length: Overall
52.00 feet (15.85m)
Tonnage: Gross
28.50

History

FRANK SPILLER LOCKE was built at a cost of £38,500 by a legacy gifted to the RNLI from a Dr Frank Spiller Locke.  She served in Weymouth between 1957 and 1976 and undertook 249 launches, saving 126 lives.  She then went to the Aran Islands, Galway Bay, Ireland between 1977 and 1985, where she undertook 40 launches, saving 8 lives. She was then sold out of service in 1986.

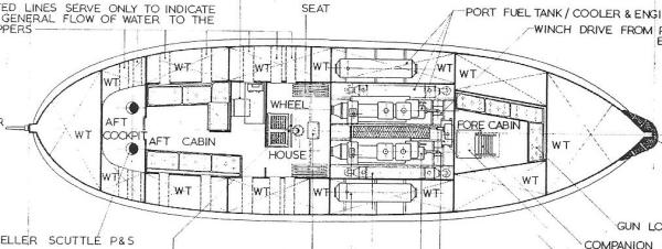
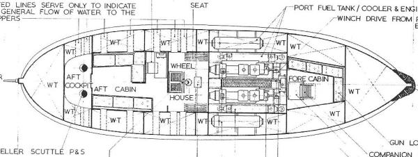
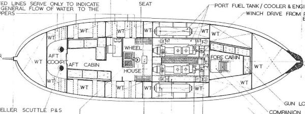
The Barnett 52 foot class was introduced in 1950 and 20 were built, the last being in 1960.  The first ten were Mk 1's and the last ten were Mk2's. The FRANK SPILLER LOCKE is number 14.  The class can be regarded as the culmination of James Barnett's ideas about lifeboat design and development.  The class had a distinctive deck feature of a midship steering position, as well as twin engines, twin screws and shelter for the rescued and rescuers. The hull was divided into ten water tight compartments with the engine room being of aluminium with a double bottom.  324 air cases were installed to provided buoyancy if the hull was breached.  Twin 72hp 6LW Gardner diesels gave a maximum speed of 9 knots and an operational range of 180 miles at full speed. Besides a crew of 8, the 52ft Barnett could carry 100 people in rough weather.  The class was not self-righting so in the 1970's they were fitted with air bags to give a once only self righting capability. 

The current owner from 2002 has restored the exterior to it's 1970s layout, re-fixing all the fittings and fixtures which had been removed by the previous owner in an attempt to convert the vessel into a sailing yacht.  Both the fore cabin and main crew cabin had also been completely stripped out.  These have been rebuilt to provide living accommodation in a complimentary style for an RNLI Lifeboat. Currently used to attend RNLI Lifeboat functions and rallies, including the International Maritime Rescue Federation Conference at Bremerhaven Germany 2015, as well as Classic boat festivals.

Update, October 2025: Vessel believed  under new ownership.

We are lacking information on this particular vessel. If you have any information on this vessel past or present, please contact us.

Key dates

  • 1957-01-01

    Frank Spiller Locke a 52 foot Barnett class, Mk2, (ON939) built by Groves and Gutteridge at Cowes, Isle of Wight

  • 1957-11-01

    On station at RNLI Weymouth. 249 launches. 173 lives saved

  • 1958-06-14

    RNLI "Naming Ceremony and Service of Dedication of the Lifeboat Frank Spiller Locke" at Hope Cove, Weymouth by The Countess Howe

  • 1977-01-19

    On station at RNLI Aran Islands, Galway Bay, West coast of Ireland. 147 launches. 8 lives saved

  • 1986-01-03

    Withdrawn from service. Moored Mashfords Yard, Cornwall near Plymouth, awaiting sale

  • 1986-10-10

    Sold for £12,500 as a service vessel to a private contractor to maintain navigation marks in the Bristol Channel, operating out of Barry, South Wales. Renamed Louise

  • 1992-12-22

    Private sale to Lowestoft. Renamed Resolution. New owner abandons an attempt to convert the vessel to a sailing yacht. Eventually put up for sale as an unfinished project

  • 2002-01-12

    Private sale to current owner. Returned to original name of the Frank Spiller Locke. Seven year programme of works to restore exterior to original and complete interior conversion. Repainted to post 1970's RNLI colour scheme (orange, red, royal blue)

  • 2015-05-30

    At request of the RNLI, attended the International Maritime Rescue Conference, Bremerhaven, Germany, together with two other retired RNLI Lifeboats

Own this vessel?

If you are the owner of this vessel and would like to provide more details or updated information, please contact info@nationalhistoricships.org.uk

More like this

John Gellatly Hyndmann anchored in Antigua

Archived, built 1954 by White, J Samuel & Co Ltd, Cowes, Isle of Wight

In Sandwich

Registered, built 1932 by Groves & Gutteridge Ltd, Cowes

Archibald and Alexander M Paterson - starboard side

Registered, built 1952 by White, J Samuel & Co Ltd, Cowes, Isle of Wight

William & Kate Johnston - starboard quarter

Registered, built 1923 by White, J Samuel & Co Ltd, Cowes, Isle of Wight